Kova Koparma Gücünü %40 oranında arttıran KOP sistemi
Amerika'da ilk çalışması yapılan Kova Bağlantı Opsiyonu(KOP) Amerika'dan sonra ilk Türkiye'de Takeuchi Mini Ekskavatör Müşterilerinin Hizmetinde. Artık KOP sistemli kovalar sayesinde koparma gücünüzü %30 artırabilirsiniz. Yeni Takeuchi Mini Ekskavatörlerde artık standart olarak verilen bu kovaları eski mini ekskavatörünüze de yaptırabilirsiniz. Sipariş veya daha detaylı bilgi için lütfen arayınız.
HARARET YAPMAZ
TAKEUCHI' ye has yanyana dizilen entegre radyatörler sayesinde hararet yapmadan çalışma keyfi sunar.
Dozer Bıçağında Devrim (OPSİYONEL)
Mini ekskavatörünüzü greyder gibi kullanmak TAKEUCHI' de mümkün. Makinanızı yol yapımı, kanal kapama gibi işlerde bir greyder gibi kullanmanızı sağlayan bu sistem servisimizce sağlanabilmektedir. Bu sistem sayesinde daha az manevrayla çok daha fazla iş yapmanıza olanak sağlayacaktır.
GÜÇ
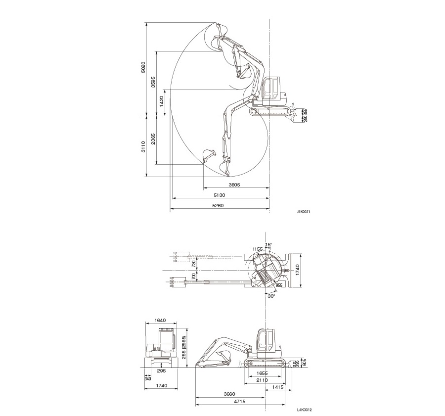
Yeni ofset boom Bu tasarım sayesinde son derece dengeli yapısı ile üstün kazma ve kaldırma yeteneğine sahiptir.
Geniş operatör koltuğu
Konforlu koltuğu ile çalışma rahatlığı sağlar ve yorulmayı en aza indirir.
Sıfır dönüş
Sıfır dönüş özelliği ile birlikte yekpare boomu çalışma ağırlığını azaltarak çalışma hızını arttırır.
Kauçuk veya çelik palet seçeneği
Özel TAKEUCHİ dizaynı sayesinde ister çelik ister kauçuk palet kullanılabilmektedir. Aşınmaya dayanıklı ve uzun ömürlü çelik palet yerine istenilen anda kauçuk palet kolayca takılabilir.
Özel TAKEUCHİ kauçuk palet dizaynı
Döküm kauçuk paletlerin merkezindeki çelik kablolar, yüksek torklu planet yürüyüş sisteminin gücünü eşit olarak dağıtarak, makinenin yüksek torkla çalışmasını sağlar. Çelik kablolar paletin, gerilmesini en aza indirir. Çelik Mandraller, palet-makara, palet-rim dişlisi, palet-istikamet arasında metal-metale teması sağlayarak paletlere taş ve molozların verdiği hasarı azaltır.
PALET ATMAZ
Üç flanşlı makaralar eğimli arazide bile palet atma problemlerini ortadan kaldırır. Yağlanmaya gerek duymayan kendinden yağlı çelik makaralar, aşınmaya karşı çok dayanıklı olup çok uzun ömürlüdür.